Serie Stilo 50 RPT

PRACTICABLE DE ALTAS PRESTACIONES PARA UNA SECCIÓN DE HOJA DE 50 MM.

Carpintería abatible con rotura de puente térmico para puertas y ventanas; serie con baja sección de los perfiles de cerco y hoja, registra valores excelentes de aislamiento térmico y acústico.

Marco y hoja con profundidad de 43 y 50 mm respectivamente con posibilidad de aperturas practicable tanto al interior como al exterior, oscilo-batiente, osciloparalela y replegable, así como sistemas de herrajes de bisagras vistas y ocultas.

El peso máximo garantizado para hojas oscilobatientes será de 130 Kg, con juntas de estanqueidad interior, central y de acristalamiento en EPDM, material que garantiza su no deformación por el efecto de los rayos ultravioletas. Con posibilidad de un total máximo de acristalamiento de 44 mm. (sin contar con las juntas interiores y exteriores de acristalamiento).

Posibilidad de realizar tratamientos en bicolor, con diferentes colores interior y exterior.

ESPECIFICACIONES TÉCNICAS

Permeabilidad al aire CLASE 4 *
UNE EN 1026 – EN 12207
Estanqueidad al agua CLASE E1200 *
UNE EN 1027 – EN 12208
Resistencia al viento CLASE C5 *
UNE EN 12211 – EN 12210**
Transmitancia térmica «Uw» Ventana 1.7 W/m2 K **
UNE EN ISO 10077-1
Transmitancia térmica «Uf» Marco 3.5 W/m2 K
UNE EN ISO 10077-2
Aislamiento acústico 38 (-1;-5)dB ***
UNE EN 10140-2:2011
Capacidad para soportar cargas APTO
UNE EN 14609:2004

* Ventana de 2 hojas de 1230 x 1480 mm.

** Ventana de 2 hojas de 1480 x 2180 mm; vidrio Ug: 0.6 W/m2 K.

*** Ventana de 2 hojas de 1230 x 1480 mm.; vidrio Rw: 40(-2,-6) dB.

Serie Stilo 60 RPT

PRACTICABLE DE ELEVADAS PRESTACIONES INTEGRA TODAS LAS POSIBILIDADES DE APERTURA.

Carpintería abatible con rotura de puente térmico para puertas y ventanas; integra el mayor rango de posibilidades de apertura, registra valores excelentes de aislamiento térmico y acústico.

Marco y hoja con profundidad de 53 y 60 mm respectivamente con posibilidad de aperturas practicable tanto al interior como al exterior, oscilo-batiente, osciloparalela, pivotante, replegable, así como sistemas de herrajes de bisagras vistas y ocultas.

El peso máximo garantizado para hojas oscilobatientes será de 130 Kg, con juntas de estanqueidad interior, central y de acristalamiento en EPDM, material que garantiza su no deformación por el efecto de los rayos ultravioletas. Con posibilidad de un total máximo de acristalamiento de 54 mm. (sin contar con las juntas interiores y exteriores de acristalamiento)

Posibilidad de realizar tratamientos en bicolor, con diferentes colores interior y exterior.

ESPECIFICACIONES TÉCNICAS

Permeabilidad al aire CLASE 4 *
UNE EN 1026 – EN 12207
Estanqueidad al agua CLASE E1050 *
UNE EN 1027 – EN 12208
Resistencia al viento CLASE C5 *
UNE EN 12211 – EN 12210**
Transmitancia térmica «Uw» Ventana 1.5 W/m2 K **
UNE EN ISO 10077-1
Transmitancia térmica «Uf» Marco 2.9 W/m2 K
UNE EN ISO 10077-2
Aislamiento acústico 39 (-2;-5)dB ***
UNE EN 10140-2:2011
Capacidad para soportar cargas APTO
UNE EN 14609:2004

* Ventana de 2 hojas de 1230 x 1480 mm.

** Ventana de 2 hojas de 1480 x 2180 mm; vidrio Ug: 0.6 W/m2 K.

*** Ventana de 2 hojas de 1230 x 1480 mm.; vidrio 4+4/12/4/12/4+4 Silence.

Serie Stilo 60 RPT C16

PRACTICABLE C16 DE ELEVADAS PRESTACIONES Y SUTIL LÍNEA CURVA DEL PERFIL DE HOJA.

Carpintería abatible Canal 16 con rotura de puente térmico para puertas y ventanas; diseñada con una sección de la hoja de 60 mm., elevadas prestaciones de aislamiento térmico y acústico se combina en una perfilería de línea curva.

Marco y hoja con profundidad de 53 y 60 mm respectivamente con posibilidad de aperturas practicables y oscilo-batientes.

Sistemas de herrajes de bisagras vistas y ocultas, permite a los sistemas practicables un peso máximo de 120 Kg y para oscilo-batientes de 80 Kg.

Juntas de estanqueidad interior, central y de acristalamiento en EPDM, material que garantiza su no deformación por el efecto de los rayos ultravioletas. Con posibilidad de un total máximo de acristalamiento de 38.5 mm. (sin contar con las juntas interiores y exteriores de acristalamiento).

Posibilidad de realizar tratamientos en bicolor, con diferentes colores interior y exterior.

ESPECIFICACIONES TÉCNICAS

Permeabilidad al aire CLASE 4 *
UNE EN 1026 – EN 12207
Estanqueidad al agua CLASE E1050 *
UNE EN 1027 – EN 12208
Resistencia al viento CLASE C5 *
UNE EN 12211 – EN 12210**
Transmitancia térmica «Uw» Ventana 1.6 W/m2 K **
UNE EN ISO 10077-1
Transmitancia térmica «Uf» Marco 3.7 W/m2 K
UNE EN ISO 10077-2
Aislamiento acústico 38 (-1;-5)dB ***
UNE EN 10140-2:2011
Capacidad para soportar cargas APTO
UNE EN 14609:2004

* Ventana de 2 hojas de 1230 x 1480 mm.

** Ventana de 2 hojas de 1480 x 2180 mm; vidrio Ug: 0.6 W/m2 K.

*** Ventana de 2 hojas de 1230 x 1480 mm.; vidrio Rw: 40 (-2,-6)dB.

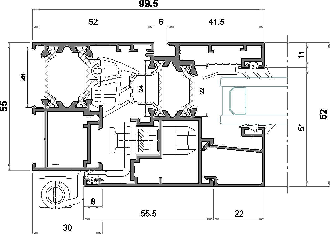
SERIE ALG 55 ESTÁNDAR

PRACTICABLE DE ALTAS PRESTACIONES PARA UNA SECCIÓN DEL MARCO DE 55 MM.

Carpintería abatible con rotura de puente térmico para puertas y ventanas; diseñada con una sección del marco de 55 mm., registra valores excelentes de aislamiento térmico y acústico.

Marco y hoja con profundidad de 55 y 62 mm respectivamente con posibilidad de aperturas practicable, oscilo-batiente, oscilo-paralela y replegable.

Sistemas de herrajes de bisagras vistas y ocultas (C.H.I.C.), permite a los sistemas practicables y oscilo-batientes, una apertura total de la ventana de 180º, de regulación tridimensional y micrométrica en todas las direcciones independientes entre sí, garantizando una capacidad de carga máxima por hoja oscilo-batiente de 130 Kg.

El sistema «alg» permite la posibilidad de elevar sus prestaciones térmicas y acústicas, convirtiéndola de esta forma en HQ (High Quality), mediante unos perfiles aislantes que se introducen en las cámaras interpoliamidas, y en la base del vidrio y del cerco.

Posibilidad de realizar tratamientos en bicolor, con diferentes colores interior y exterior.

ESPECIFICACIONES TÉCNICAS

Permeabilidad al aire CLASE 4 *
UNE EN 1026 – EN 12207
Estanqueidad al agua CLASE E2100 *
UNE EN 1027 – EN 12208
Resistencia al viento CLASE C5 *
UNE EN 12211 – EN 12210**
Transmitancia térmica «Uw» Ventana 1.1 W/m2 K **
UNE EN ISO 10077-1
Transmitancia térmica «Uf» Marco 2.3 W/m2 K
UNE EN ISO 10077-2
Aislamiento acústico 45 (-1;-5)dB ***
UNE EN 10140-2:2011
Capacidad para soportar cargas APTO
UNE EN 14609:2004

* Ventana de 2 hojas de 1230 x 1480 mm.

** Ventana de 2 hojas de 1480 x 2180 mm; vidrio Ug: 0.6 W/m2 K.

*** Ventana de 2 hojas de 1230 x 1480 mm.; vidrio 8+6 Silence/16/6+4 Silence.

SERIE ALG 55 ESTÁNDAR C16

PRACTICABLE DE ELEVADAS PRESTACIONES EL RECURSO EFICAZ QUE PRESERVA TEMPERATURAS.

Carpintería abatible de tres cámaras con rotura de puente térmico para puertas y ventanas; diseñada con una sección del marco de 65 mm., elevadas prestaciones de aislamiento térmico y acústico se combina en una perfilería de marcada robustez.

Marco y hoja con profundidad de 65 y 72 mm respectivamente con posibilidad de aperturas practicable, oscilo-batiente, oscilo-paralela y replegable. Sistemas de herrajes de bisagras vistas y ocultas (C.H.I.C.). El peso máximo garantizado para hojas oscilobatientes será de 130 Kg.

El sistema «alg» permite la posibilidad de elevar sus prestaciones térmicas y acústicas, convirtiéndola de esta forma en HQ (High Quality), mediante unos perfiles aislantes que se introducen en las cámaras interpoliamidas, y en la base del vidrio y del cerco.

Posibilidad de realizar tratamientos en bicolor, con diferentes colores interior y exterior.

ESPECIFICACIONES TÉCNICAS

Permeabilidad al aire CLASE 4 *
UNE EN 1026 – EN 12207
Estanqueidad al agua CLASE E3300 *
UNE EN 1027 – EN 12208
Resistencia al viento CLASE C5 *
UNE EN 12211 – EN 12210
Transmitancia térmica «Uw» Ventana 1.0 W/m2 K **
UNE EN ISO 10077-1
ransmitancia térmica «Uf» Marco 2.0 W/m2 K
UNE EN ISO 10077-2
Aislamiento acústico 47 (-1;-4)dB ***
UNE EN 10140-2:2011
Capacidad para soportar cargas APTO
UNE EN 14609:2004

* Ventana de 2 hojas de 1230 x 1480 mm.

** Ventana de 2 hojas de 1480 x 2180 mm; vidrio Ug: 0.6 W/m2 K.

*** Ventana de 2 hojas de 1230 x 1480 mm.; vidrio 6+6 Silence/24/4+4 Silence.

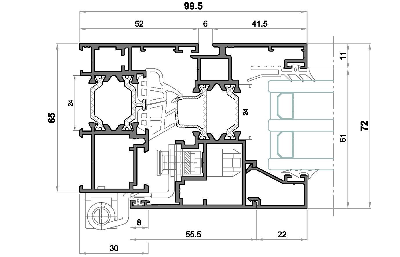
SERIE ALG 65 ÓPTIMA

PRACTICABLE DE ELEVADAS PRESTACIONES EL RECURSO EFICAZ QUE PRESERVA TEMPERATURAS.

Carpintería abatible de tres cámaras con rotura de puente térmico para puertas y ventanas; diseñada con una sección del marco de 65 mm., elevadas prestaciones de aislamiento térmico y acústico se combina en una perfilería de marcada robustez.

Marco y hoja con profundidad de 65 y 72 mm respectivamente con posibilidad de aperturas practicable, oscilo-batiente, oscilo-paralela y replegable. Sistemas de herrajes de bisagras vistas y ocultas (C.H.I.C.). El peso máximo garantizado para hojas oscilobatientes será de 130 Kg.

Sistemas de herrajes de bisagras vistas y ocultas, permite a los sistemas practicables un peso máximo de 120 Kg y para oscilo-batientes de 100 Kg.

El sistema «alg» permite la posibilidad de elevar sus prestaciones térmicas y acústicas, convirtiéndola de esta forma en HQ (High Quality), mediante unos perfiles aislantes que se introducen en las cámaras interpoliamidas, y en la base del vidrio y del cerco.

Posibilidad de realizar tratamientos en bicolor, con diferentes colores interior y exterior.

ESPECIFICACIONES TÉCNICAS

Permeabilidad al aire CLASE 4 *
UNE EN 1026 – EN 12207
Estanqueidad al agua CLASE E3300 *
UNE EN 1027 – EN 12208
Resistencia al viento CLASE C5 *
UNE EN 12211 – EN 12210
Transmitancia térmica «Uw» Ventana 1.0 W/m2 K **
UNE EN ISO 10077-1
Transmitancia térmica «Uf» Marco 2.0 W/m2 K
UNE EN ISO 10077-2
Aislamiento acústico 47 (-1;-4)dB ***
UNE EN 10140-2:2011
Capacidad para soportar cargas APTO
UNE EN 14609:2004

* Ventana de 2 hojas de 1230 x 1480 mm.

** Ventana de 2 hojas de 1480 x 2180 mm; vidrio Ug: 0.6 W/m2 K.

*** Ventana de 2 hojas de 1230 x 1480 mm.; vidrio 6+6 Silence/24/4+4 Silence.

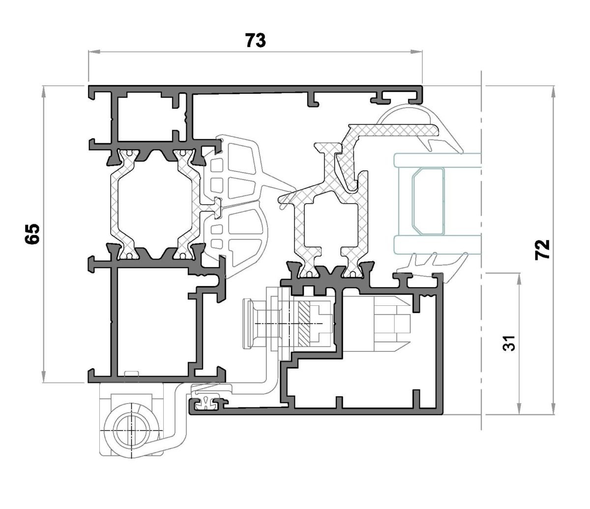
SERIE ALG 65 ÓPTIMA HS

SISTEMA DE HOJA OCULTA ABRE ESPACIOS ARQUITECTÓNICOS A LA ILUMINACIÓN NATURAL.

El Sistema HS es un referente en estética para ventanas con rotura de puente térmico; vista desde el exterior sólo del perfil de cerco liso de 73 mm. o cerco con huella de 70 mm. Sistema sin junquillo, la propia hoja recoge el acristalamiento, una solución innovadora.

Marco tiene una profundidad de 65 mm. y la hoja de 59.5 mm. Dicho sistema posibilita aperturas practicables y oscilobatientes, así como sistemas de herrajes de bisagras vistas y ocultas (C.H.I.C.). El peso máximo garantizado para hojas oscilobatientes será de 130 Kg.

El sistema «alg» permite la posibilidad de elevar sus prestaciones térmicas y acústicas, convirtiéndola de esta forma en HQ (High Quality), mediante unos perfiles aislantes que se introducen en las cámaras interpoliamidas, y en la base del vidrio y del cerco.

Posibilidad de realizar tratamientos en bicolor, con diferentes colores interior y exterior.

ESPECIFICACIONES TÉCNICAS

Permeabilidad al aire CLASE 4 *
UNE EN 1026 – EN 12207
Estanqueidad al agua CLASE E900 *
UNE EN 1027 – EN 12208
Resistencia al viento CLASE C5 *
UNE EN 12211 – EN 12210
Transmitancia térmica «Uw» Ventana 1.3 W/m2 K **
UNE EN ISO 10077-1
Transmitancia térmica «Uf» Marco 2.4 W/m2 K
UNE EN ISO 10077-2
Aislamiento acústico 46 (-2;-5)dB ***
UNE EN 10140-2:2011

* Ventana de 2 hojas de 1230 x 1480 mm.

** Ventana de 2 hojas de 1480 x 2180 mm; vidrio Ug: 0.6 W/m2 K.

*** Ventana de 2 hojas de 1230 x 1480 mm.; vidrio 4+4 Silence/12/5+5 Silence.

SERIE ALG 65 ÓPTIMA C16

PRACTICABLE C16 DE ELEVADAS PRESTACIONES EL RECURSO EFICAZ QUE PRESERVA TEMPERATURAS

Carpintería abatible Canal 16 de tres cámaras con rotura de puente térmico para puertas y ventanas; diseñada con una sección del marco de 65 mm., elevadas prestaciones de aislamiento térmico y acústico se combina en una perfilería de marcada robustez.

Marco y hoja con profundidad de 65 y 72 mm respectivamente con posibilidad de aperturas practicables y oscilo-batientes.

Sistemas de herrajes de bisagras vistas y ocultas, permite a los sistemas practicables un peso máximo de 120 Kg y para oscilo-batientes de 100 Kg.

El sistema «alg» permite la posibilidad de elevar sus prestaciones térmicas y acústicas, convirtiéndola de esta forma en HQ (High Quality), mediante unos perfiles aislantes que se introducen en las cámaras interpoliamidas, y en la base del vidrio y del cerco.

Posibilidad de realizar tratamientos en bicolor, con diferentes colores interior y exterior.

ESPECIFICACIONES TÉCNICAS

Permeabilidad al aire CLASE 4 *
UNE EN 1026 – EN 12207
Estanqueidad al agua CLASE E3000 *
UNE EN 1027 – EN 12208
Resistencia al viento CLASE C5 *
UNE EN 12211 – EN 12210
Transmitancia térmica «Uw» Ventana 1.1 W/m2 K **
UNE EN ISO 10077-1
Transmitancia térmica «Uf» Marco 2.3 W/m2 K
UNE EN ISO 10077-2
Aislamiento acústico 45 (-1;-3)dB ***
UNE EN 10140-2:2011
Capacidad para soportar cargas APTO
UNE EN 14609:2004

* Ventana de 2 hojas de 1230 x 1480 mm.

** Ventana de 2 hojas de 1480 x 2180 mm; vidrio Ug: 0.6 W/m2 K.

*** Ventana de 2 hojas de 1230 x 1480 mm.; vidrio 6+6 Silence/16/4+4 Silence.

SERIE ALG 65 ÓPTIMA HS C16

PSISTEMA DE HOJA OCULTA ABRE ESPACIOS ARQUITECTÓNICOS A LA ILUMINACIÓN NATURAL

El Sistema HS Canal 16 es un referente en estética para ventanas con rotura de puente térmico; vista desde el exterior sólo del perfil de cerco liso de 73 mm. Sistema sin junquillo, la propia hoja recoge el acristalamiento, una solución innovadora.

Marco tiene una profundidad de 65 mm. y la hoja de 59.5 mm. Dicho sistema posibilita aperturas practicables y oscilobatientes, así como sistemas de herrajes de bisagras vistas y ocultas (C.H.I.C.). El peso máximo garantizado para hojas oscilobatientes será de 100 Kg. y en practicables de 120 Kg.

El sistema «alg» permite la posibilidad de elevar sus prestaciones térmicas y acústicas, convirtiéndola de esta forma en HQ (High Quality), mediante unos perfiles aislantes que se introducen en las cámaras interpoliamidas, y en la base del vidrio y del cerco.

Posibilidad de realizar tratamientos en bicolor, con diferentes colores interior y exterior.

ESPECIFICACIONES TÉCNICAS

Permeabilidad al aire CLASE 4 *
UNE EN 1026 – EN 12207
Estanqueidad al agua CLASE E2250 *
UNE EN 1027 – EN 12208
Resistencia al viento CLASE C5 *
UNE EN 12211 – EN 12210
Transmitancia térmica «Uw» Ventana 1.3 W/m2 K **
UNE EN ISO 10077-1
Transmitancia térmica «Uf» Marco 2.5 W/m2 K
UNE EN ISO 10077-2
Aislamiento acústico 44 (-1;-4)dB ***
UNE EN 10140-2:2011

* Ventana de 2 hojas de 1230 x 1480 mm.

** Ventana de 2 hojas de 1480 x 2180 mm; vidrio Ug: 0.6 W/m2 K.

*** Ventana de 2 hojas de 1230 x 1480 mm.; vidrio 4+4 Silence/10/5+5 Silence.

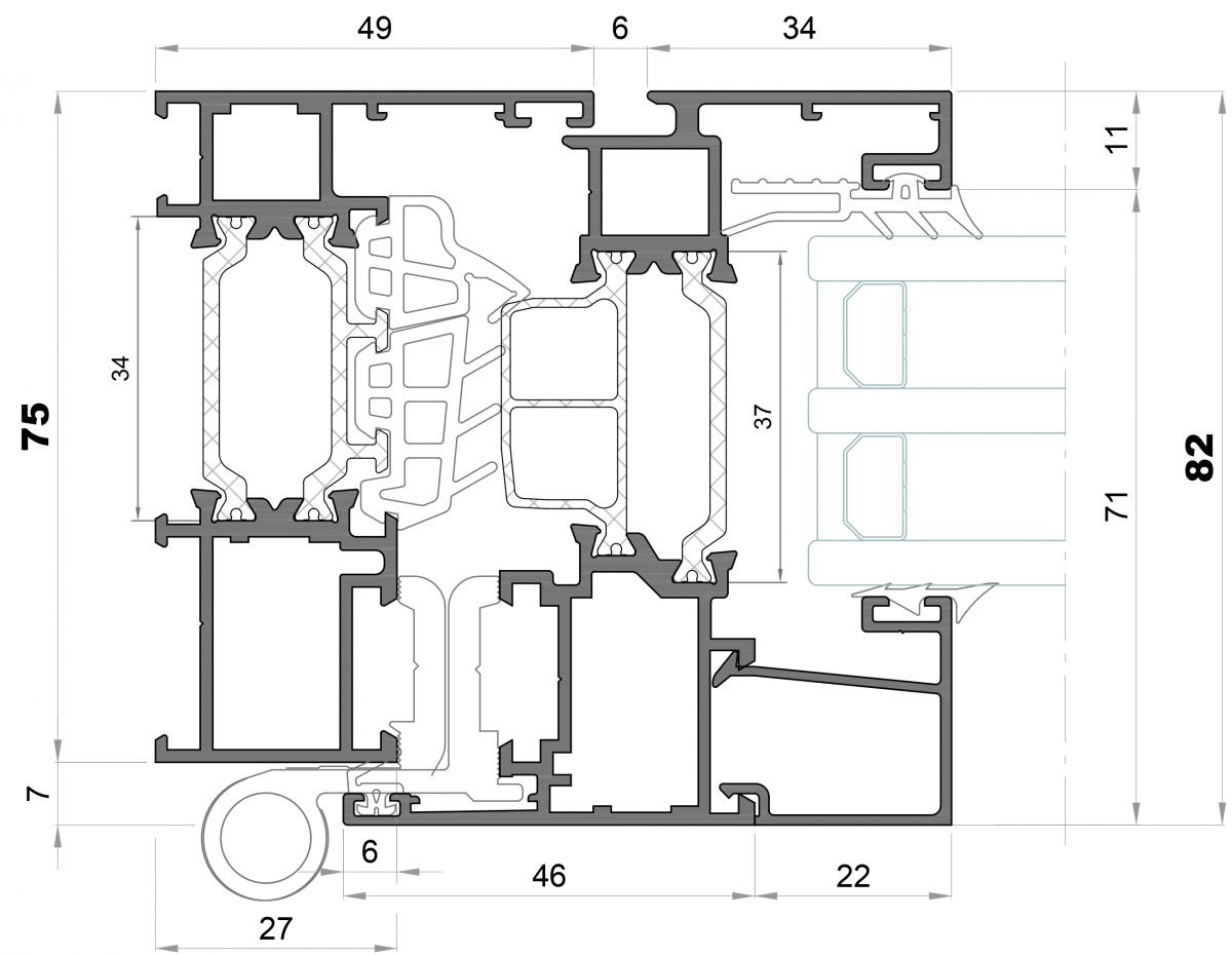
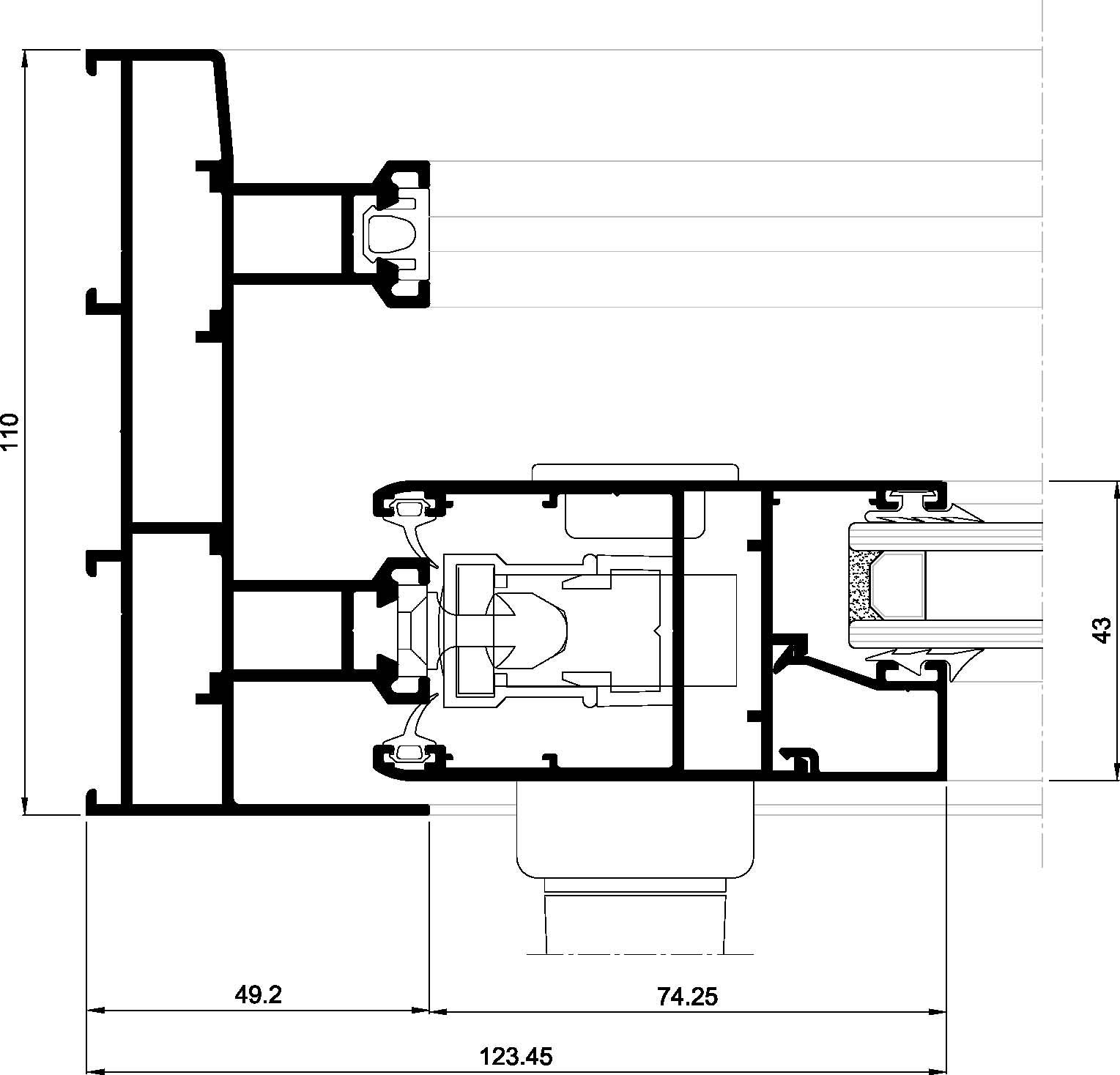
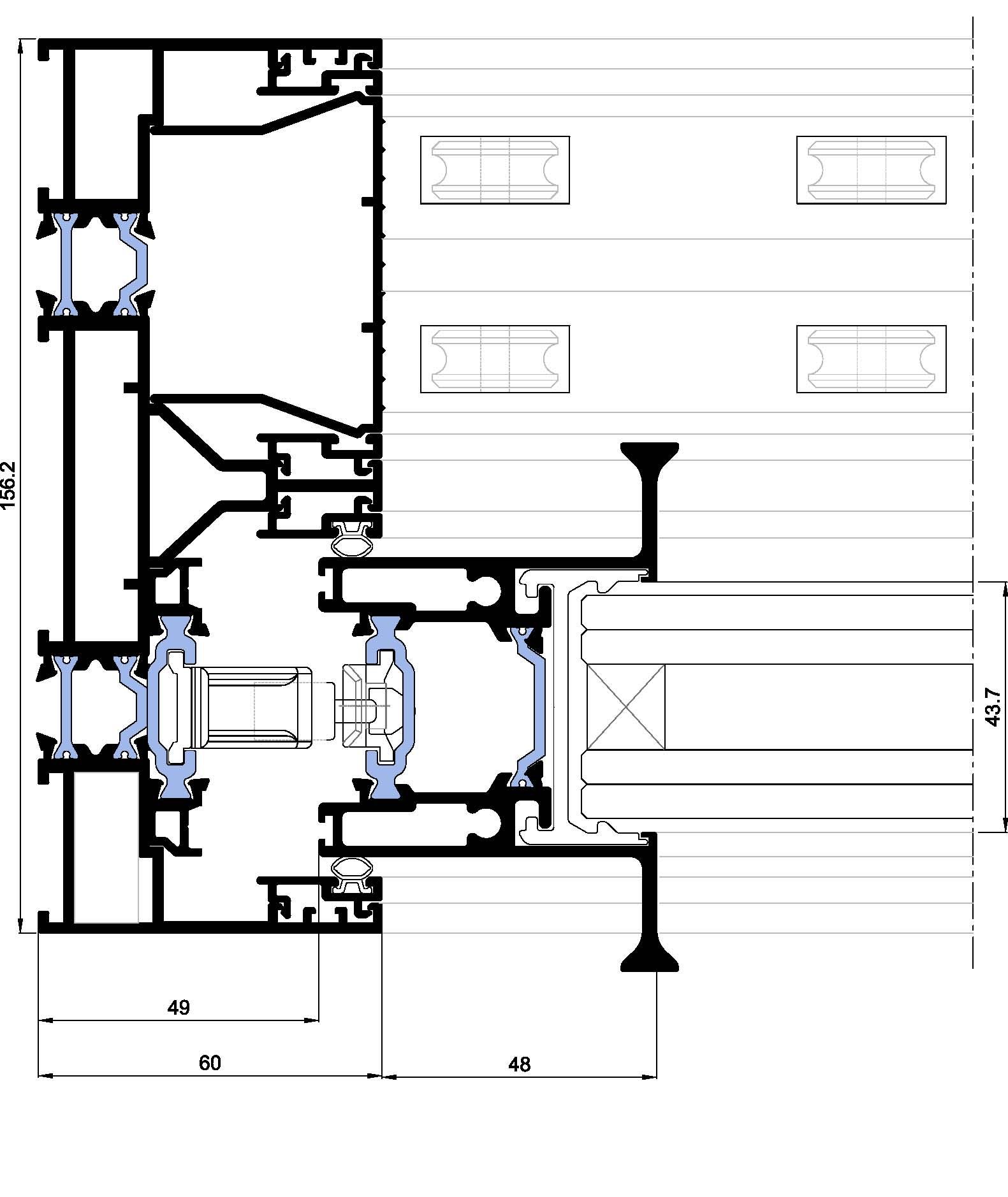
SERIE ALG 75 MÁXIMA

PRACTICABLE CON LAS MÁXIMAS PRESTACIONES Y LA EFICIENCIA ENERGÉTICA DEL FUTURO

Carpintería abatible de tres cámaras con rotura de puente térmico para puertas y ventanas; con un diseño robusto, una gran versatilidad y un alto aislamiento térmico, ya que está ensamblada con poliamidas de 34 y 37 mm. Permite hasta 53 mm de galce de vidrio, pudiéndose realizar grandes ventanales para mejorar el confort y la luminosidad de las viviendas o edificios.

Marco y hoja con una profundidad de 75 y 82 mm respectivamente. Dicho sistema posibilita todo tipo de aperturas practicables tanto al interior como al exterior, oscilobatientes, oscilo-paralelas y replegables, así como sistemas de herrajes de bisagras vistas y ocultas (C.H.I.C.). El peso máximo garantizado para hojas oscilobatientes será de 130 Kg.

El sistema «alg» permite la posibilidad de elevar sus prestaciones térmicas y acústicas, convirtiéndola de esta forma en HQ (High Quality), mediante unos perfiles aislantes que se introducen en las cámaras interpoliamidas, y en la base del vidrio y del cerco.

Posibilidad de realizar tratamientos en bicolor, con diferentes colores interior y exterior.

Una ventana TOP con la eficiencia energética del futuro.

ESPECIFICACIONES TÉCNICAS

Permeabilidad al aire CLASE 4 *
UNE EN 1026 – EN 12207
Estanqueidad al agua CLASE E3600 *
UNE EN 1027 – EN 12208
Resistencia al viento CLASE C5 *
UNE EN 12211 – EN 12210
Transmitancia térmica «Uw» Ventana 0.9 W/m2 K **
UNE EN ISO 10077-1
Transmitancia térmica «Uf» Marco 1.5 W/m2 K
UNE EN ISO 10077-2
Aislamiento acústico 44 (-1;-5)dB ***
UNE EN 10140-2:2011
Capacidad para soportar cargas APTO
UNE EN 14609:2004

* Ventana de 2 hojas de 1230 x 1480 mm.

** Ventana de 2 hojas de 1480 x 2180 mm; vidrio Ug: 0.6 W/m2 K.

*** Ventana de 2 hojas de 1230 x 1480 mm.; vidrio 6+6 Silence/24/4+4 Silence.

SERIE ALG 75 MÁXIMA HS

SISTEMA DE HOJA OCULTA ABRE ESPACIOS ARQUITECTÓNICOS A LA ILUMINACIÓN NATURAL

El Sistema HS es un referente en estética para ventanas con rotura de puente térmico; vista desde el exterior sólo del perfil de cerco liso de 73 mm. o cerco con huella de 70 mm. Sistema sin junquillo, la propia hoja recoge el acristalamiento, una solución innovadora.

Marco tiene una profundidad de 75 mm. y la hoja de 69.5 mm. Dicho sistema posibilita aperturas practicables y oscilobatientes, así como sistemas de herrajes de bisagras vistas y ocultas (C.H.I.C.). El peso máximo garantizado para hojas oscilobatientes será de 130 Kg.

El sistema «alg» permite la posibilidad de elevar sus prestaciones térmicas y acústicas, convirtiéndola de esta forma en HQ (High Quality), mediante unos perfiles aislantes que se introducen en las cámaras interpoliamidas, y en la base del vidrio y del cerco.

Posibilidad de realizar tratamientos en bicolor, con diferentes colores interior y exterior.

ESPECIFICACIONES TÉCNICAS

Permeabilidad al aire CLASE 4 *
UNE EN 1026 – EN 12207
Estanqueidad al agua CLASE E900 *
UNE EN 1027 – EN 12208
Resistencia al viento CLASE C5 *
UNE EN 12211 – EN 12210
Transmitancia térmica «Uw» Ventana 1.2 W/m2 K **
UNE EN ISO 10077-1
Transmitancia térmica «Uf» Marco 2.3 W/m2 K
UNE EN ISO 10077-2
Aislamiento acústico 45 (-2;-6)dB ***
UNE EN 10140-2:2011

* Ventana de 2 hojas de 1230 x 1480 mm.

** Ventana de 2 hojas de 1480 x 2180 mm; vidrio Ug: 0.6 W/m2 K.

*** Ventana de 2 hojas de 1230 x 1480 mm.; vidrio 4+4 Silence/16/5+5 Silence.

SERIE ALG 75 MÁXIMA HS C16

SISTEMA DE HOJA OCULTA ABRE ESPACIOS ARQUITECTÓNICOS A LA ILUMINACIÓN NATURAL

El Sistema HS Canal 16 es un referente en estética para ventanas con rotura de puente térmico; vista desde el exterior sólo del perfil de cerco liso de 73 mm. Sistema sin junquillo, la propia hoja recoge el acristalamiento, una solución innovadora.

Marco tiene una profundidad de 75 mm. y la hoja de 69.5 mm. Dicho sistema posibilita aperturas practicables y oscilobatientes, así como sistemas de herrajes de bisagras vistas y ocultas (C.H.I.C.). El peso máximo garantizado para hojas oscilobatientes será de 100 Kg. y para practicables de 120 Kg.

El sistema «alg» permite la posibilidad de elevar sus prestaciones térmicas y acústicas, convirtiéndola de esta forma en HQ (High Quality), mediante unos perfiles aislantes que se introducen en las cámaras interpoliamidas, y en la base del vidrio y del cerco.

Posibilidad de realizar tratamientos en bicolor, con diferentes colores interior y exterior.

ESPECIFICACIONES TÉCNICAS

Permeabilidad al aire CLASE 4 *
UNE EN 1026 – EN 12207
Estanqueidad al agua CLASE E2550 *
UNE EN 1027 – EN 12208
Resistencia al viento CLASE C5 *
UNE EN 12211 – EN 12210
Transmitancia térmica «Uw» Ventana 1.2 W/m2 K **
UNE EN ISO 10077-1
Transmitancia térmica «Uf» Marco 2.2 W/m2 K
UNE EN ISO 10077-2
Aislamiento acústico 45 (-1;-4)dB ***
UNE EN 10140-2:2011

* Ventana de 2 hojas de 1230 x 1480 mm.

** Ventana de 2 hojas de 1480 x 2180 mm; vidrio Ug: 0.6 W/m2 K.

*** Ventana de 2 hojas de 1230 x 1480 mm.; vidrio 4+4 Silence/16/5+5 Silence.

SERIE S-100

PRACTICABLE PARA REQUERIMIENTOS ESTÉTICOS Y TÉCNICOS ELEMENTALES

Carpintería sin rotura de puente térmico para aperturas practicables; para requerimientos estéticos y técnicos elementales.

Marco y hoja con profundidad de 40 mm. respectivamente con posibilidad de aperturas practicable tanto al interior como al exterior.

El peso máximo garantizado para hojas practicables será de 60 Kg, con juntas de estanqueidad interior, central y de acristalamiento en EPDM, material que garantiza su no deformación por el efecto de los rayos ultravioletas. Con posibilidad de un total máximo de acristalamiento de 27.5 mm.

Amplia gama de perfiles, que facilitan la composición de diferentes diseños así como múltiples posibilidades en su puesta en obra.

ESPECIFICACIONES TÉCNICAS

Permeabilidad al aire CLASE 3 *
UNE EN 1026 – EN 12207
Estanqueidad al agua CLASE 6A *
UNE EN 1027 – EN 12208
Resistencia al viento CLASE C5 *
UNE EN 12211 – EN 12210
Transmitancia térmica «Uw» Ventana 3.7 W/m2 K **
UNE EN ISO 10077-1
Aislamiento acústico 31 (-1;-4)dB ***
UNE EN 10140-2:2011
Capacidad para soportar cargas APTO
UNE EN 14609:2004

* Ventana de 2 hojas de 1230 x 1480 mm.

** Ventana de 2 hojas de 1480 x 2180 mm; vidrio 4-10-4

*** Ventana de 2 hojas de 1230 x 1480 mm.; vidrio 4-10-4

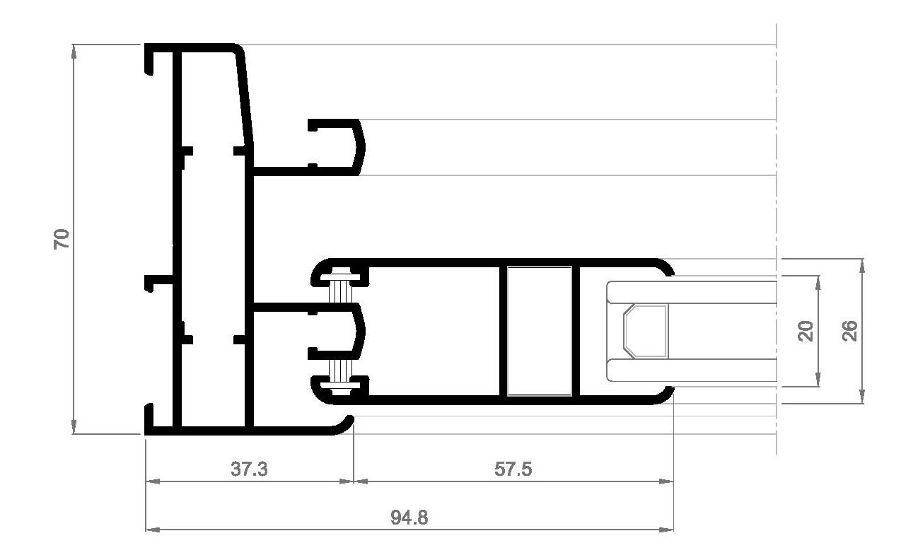
SERIE S-350 EUR

PRACTICABLE DOTADA POR REDUCIDA SECCIÓN DE PERFILES MAS GRAN RENDIMIENTO AISLANTE

Carpintería abatible sin rotura de puente térmico para puertas y ventanas; serie con baja sección de los perfiles de cerco y hoja, mantiene un gran rendimiento de sus prestaciones.

Marco y hoja con profundidad de 40 y 47 mm respectivamente con posibilidad de aperturas practicable tanto al interior como al exterior, oscilo-batiente y replegable, así como sistemas de herrajes de bisagras vistas y ocultas.

El peso máximo garantizado para hojas oscilobatientes será de 130 Kg, con juntas de estanqueidad interior, central y de acristalamiento en EPDM, material que garantiza su no deformación por el efecto de los rayos ultravioletas. Con posibilidad de un total máximo de acristalamiento de 34 mm. (sin contar con las juntas de acristalamiento).

Amplia gama de perfiles, que facilitan la composición de diferentes diseños así como múltiples posibilidades en su puesta en obra.

ESPECIFICACIONES TÉCNICAS

Permeabilidad al aire CLASE 4 *
UNE EN 1026 – EN 12207
Estanqueidad al agua CLASE 8A *
UNE EN 1027 – EN 12208
Resistencia al viento CLASE C4 *
UNE EN 12211 – EN 12210
Transmitancia térmica «Uw» Ventana 3.8 W/m2 K **
UNE EN ISO 10077-1
Transmitancia térmica «Uf» Marco 5.7 W/m2 K
UNE EN ISO 10077-2
Aislamiento acústico 38 (-1;-5)dB ***
UNE EN 10140-2:2011
Capacidad para soportar cargas APTO
UNE EN 14609:2004

* Ventana de 2 hojas de 1230 x 1480 mm.

** Ventana de 2 hojas de 1480 x 2180 mm; vidrio 4-8-4

*** Ventana de 2 hojas de 1230 x 1480 mm.; vidrio Rw: 40(-2,-6) dB

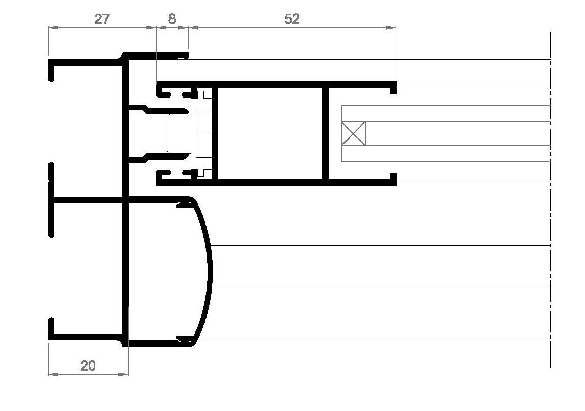
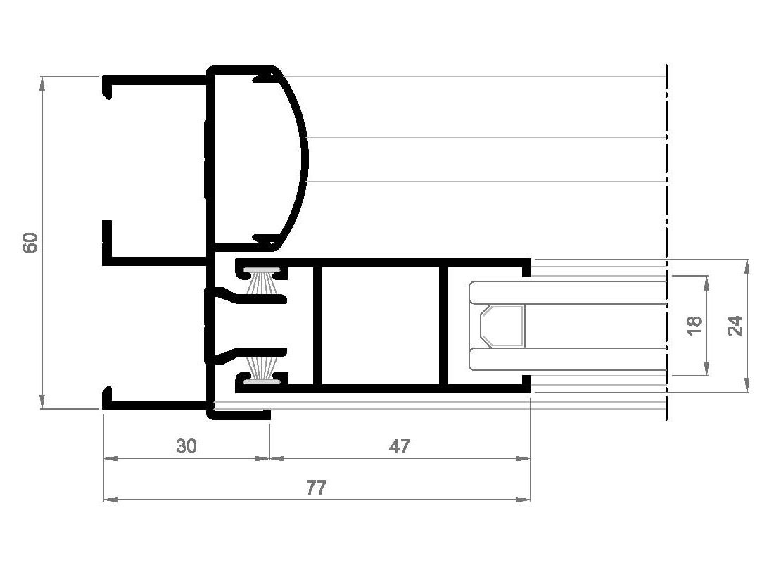
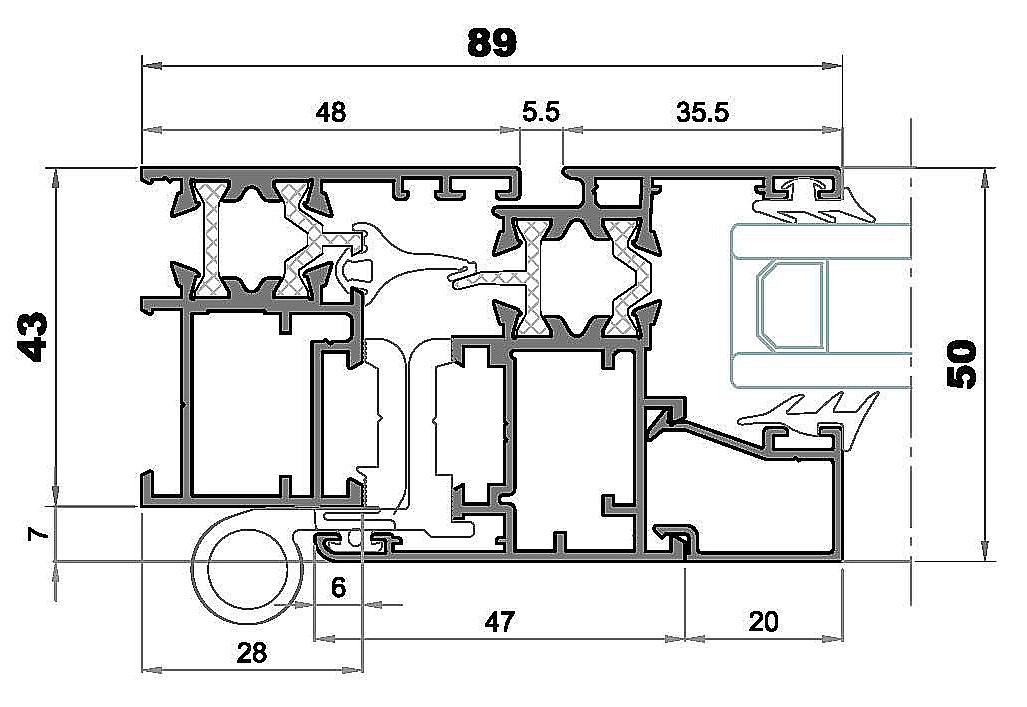
SERIE STILO 50

PRACTICABLE QUE MANTIENE UN PERFIL DE CARACTERÍSTICAS GENERALES ÓPTIMO

Carpintería abatible sin rotura de puente térmico para puertas y ventanas; serie con baja sección de los perfiles de cerco y hoja, mantiene un perfil de prestaciones generales óptimo.

Marco y hoja con profundidad de 43 y 50 mm respectivamente con posibilidad de aperturas practicable tanto al interior como al exterior, oscilo-batiente y replegable, así como sistemas de herrajes de bisagras vistas y ocultas.

El peso máximo garantizado para hojas oscilobatientes será de 130 Kg, con juntas de estanqueidad interior, central y de acristalamiento en EPDM, material que garantiza su no deformación por el efecto de los rayos ultravioletas. Con posibilidad de un total máximo de acristalamiento de 44 mm. (sin contar con las juntas interiores y exteriores de acristalamiento).

Amplia gama de perfiles, que facilitan la composición de diferentes diseños así como múltiples posibilidades en su puesta en obra.

ESPECIFICACIONES TÉCNICAS

Permeabilidad al aire CLASE 4 *
UNE EN 1026 – EN 12207
Estanqueidad al agua CLASE E1200 *
UNE EN 1027 – EN 12208
Resistencia al viento CLASE C5 *
UNE EN 12211 – EN 12210
Transmitancia térmica «Uw» Ventana 3.9 W/m2 K **
UNE EN ISO 10077-1
Aislamiento acústico 38 (-1;-5)dB ***
UNE EN 10140-2:2011
Capacidad para soportar cargas APTO
UNE EN 14609:2004

* Ventana de 2 hojas de 1230 x 1480 mm.

** Ventana de 2 hojas de 1480 x 2180 mm. con cajón de persiana; vidrio 4-10-4

*** Ventana de 2 hojas de 1230 x 1480 mm.; vidrio Rw: 40(-2,-6) dB

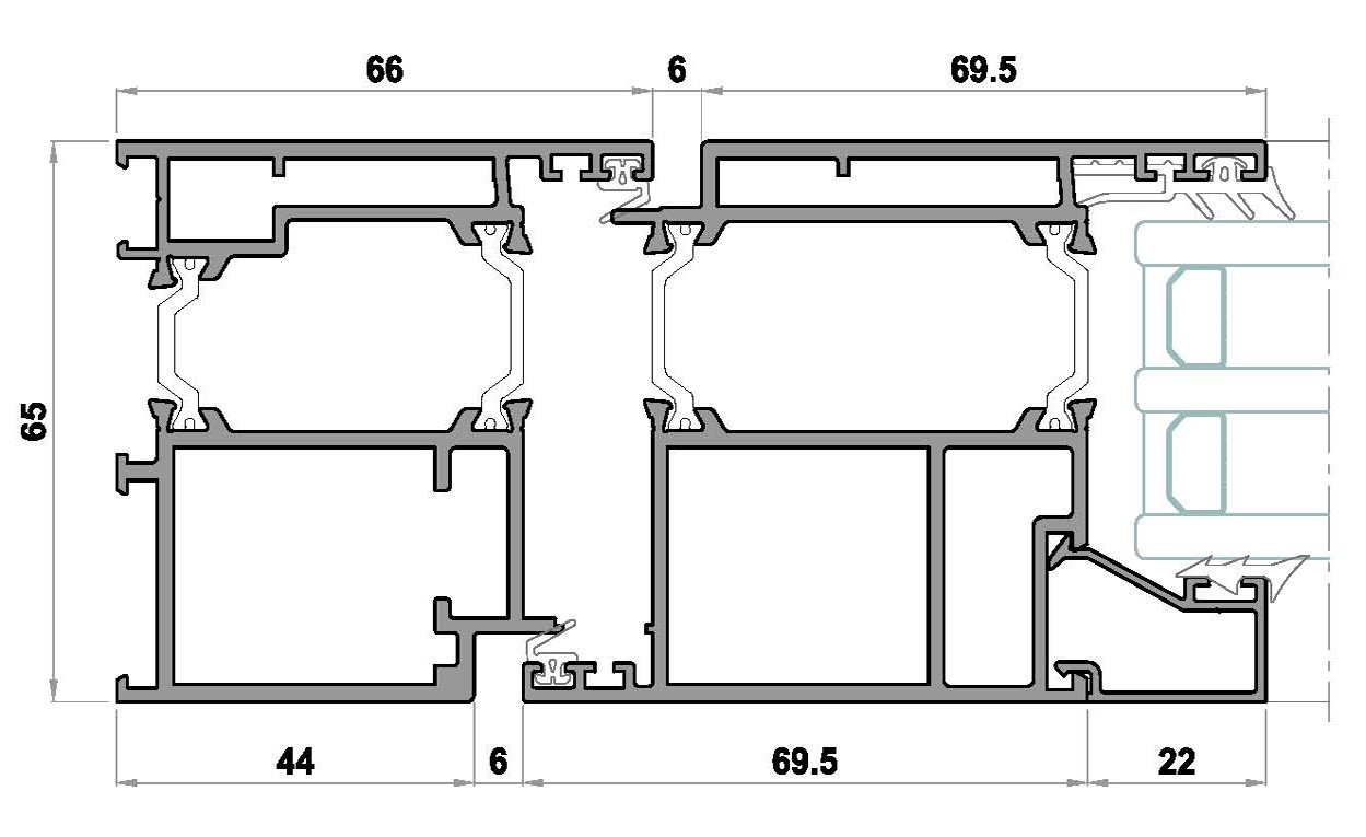
SERIE SILVER 65 RPT

CORREDERA FUNCIONAL CON REDUCIDA SECCIÓN DEL MARCO Y AMPLIA COBERTURA TÉRMICA

Carpintería corredera con rotura de puente térmico que permite un desplazamiento de las hojas sobre el cerco de 65 mm. Posibilidad de perfil de hoja reforzada con mayor inercia, con efecto de tirador.

Marco y hoja perimetrales con una profundidad de 65 y 28 mm respectivamente. Posibilidad de marco de dos carriles. El peso máximo garantizado para las hojas será de hasta 120 Kg, con ruedas tándem regulables.

Posee varias opciones de cierre, permitiendo incorporar un cierre multipunto accionado mediante maneta.

Galce máximo de acristalamiento de 21 mm. (24mm. de hueco).

ESPECIFICACIONES TÉCNICAS

Permeabilidad al aire CLASE 3 *
UNE EN 1026 – EN 12207
Estanqueidad al agua CLASE 7A *
UNE EN 1027 – EN 12208
Resistencia al viento CLASE C5 *
UNE EN 12211 – EN 12210
Transmitancia térmica 1.8 W/m2 K **
UNE EN ISO 10077-1
Aislamiento acústico 31 (-1;-4)dB ***
UNE EN 10140-2:2011
Capacidad para soportar cargas APTO
UNE EN 14609:2004

* Ventana de 2 hojas de 1230 x 1480 mm.

** Ventana de 2 hojas de 1480 x 2180 mm; vidrio Ug: 0.8 W/m2 K

*** Ventana de 2 hojas de 1230 x 1480 mm.; vidrio 4/12/4

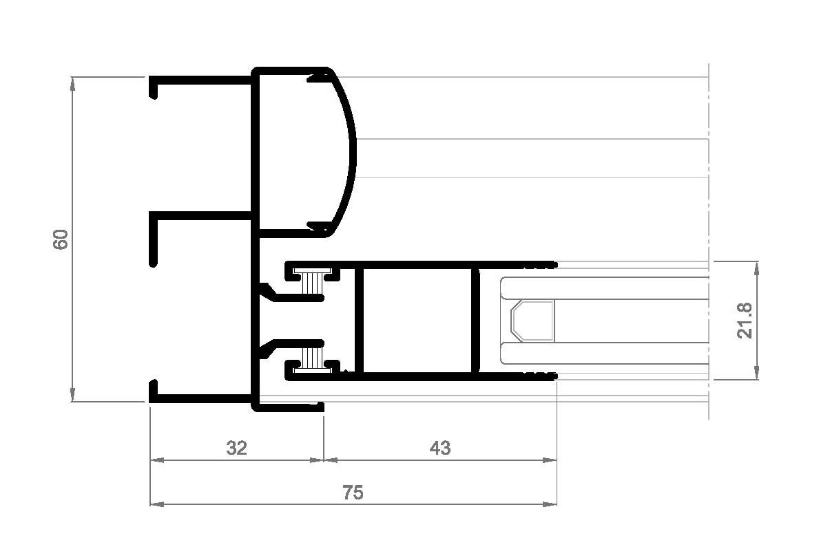
SERIE SILVER 76 RPT

CORREDERA VERSÁTIL CON EXCELENTES PRESTACIONES

Carpintería corredera con rotura de puente térmico que permite un desplazamiento de las hojas sobre el cerco de 80 mm., suave y silencioso, facilitando enormemente su manejo. Existe la posibilidad de incorporar un cerco de 3 carriles permitiendo la realización de grandes aperturas como paso al balcón o terraza. Perfil de hoja central testa minimalista de 37 mm. frente visto, la estética que dota al sistema de estilo y mayor campo visual.

Marco y hoja perimetrales con una profundidad de 80 y 32 mm respectivamente. Posibilidad de marcos de dos y tres carriles. El peso máximo garantizado para las hojas será de hasta 180 Kg, con ruedas tándem regulables.

Posee varias opciones de cierre, permitiendo incorporar un cierre multipunto accionado mediante maneta.

Galce máximo de acristalamiento de 29 mm (en hoja recta), permitiendo acristalar vidrios hasta 26 mm.

ESPECIFICACIONES TÉCNICAS

Permeabilidad al aire CLASE 3 *
UNE EN 1026 – EN 12207
Estanqueidad al agua CLASE 7A *
UNE EN 1027 – EN 12208
Resistencia al viento CLASE C5 *
UNE EN 12211 – EN 12210
Transmitancia térmica 1.6 W/m2 K **
UNE EN ISO 10077-1
Aislamiento acústico 38 (-1;-2)dB ***
UNE EN 10140-2:2011

* Ventana de 2 hojas de 1230 x 1480 mm.

** Ventana de 2 hojas de 1480 x 2180 mm; vidrio Ug: 0.8 W/m2 K

*** Ventana de 2 hojas de 1250 x 1500 mm.; vidrio 4+4.2 Silence/10/3+3.2 Silence

SERIE MATRA 110 RPT

CORREDERA ELEVABLE Y EN LÍNEA QUE MODULA GRANDES ESPACIOS

Carpintería corredera con rotura de puente térmico que permite elegir el tipo de accionamiento de la hoja; corredera en línea ó elevable.

Marco y hoja son perimetrales teniendo una profundidad de 110 mm y 43 mm respectivamente. Dicho sistema cuenta con marcos de dos y tres carriles. El peso máximo garantizado para las hojas será de hasta 200 Kgr. con ruedas tándem regulables.

El sistema de corredera en línea realiza el cierre de la hoja con el cerco mediante un cierre multipunto accionado con maneta.

El sistema elevable permite una elevación de la hoja para abrir el cerramiento, bajando después para que el cierre sea perimetral y hermético, todo ello accionado mediante maneta.

La hoja permite la colocación de junquillos rectos o curvos siendo el galce máximo de acristalamiento de 34 mm.

Amplia gama de perfiles, que facilitan la composición de diferentes diseños así como múltiples posibilidades en su puesta en obra.

ESPECIFICACIONES TÉCNICAS

Permeabilidad al aire CLASE 3 *
UNE EN 1026 – EN 12207
Estanqueidad al agua CLASE 7A *
UNE EN 1027 – EN 12208
Resistencia al viento CLASE C5 *
UNE EN 12211 – EN 12210
Transmitancia térmica 1.9 W/m2 K **
UNE EN ISO 10077-1
Aislamiento acústico 30 (-1;-2)dB ***
UNE EN 10140-2:2011

* Ventana de 2 hojas de 1230 x 1480 mm.

** Ventana de 2 hojas de 1480 x 2180 mm; vidrio Ug: 0.6 W/m2 K

*** Ventana de 2 hojas de 1230 x 1480 mm.; vidrio Rw:40 (-2,-6)dB

SERIE MATRA 135 RPT

CORREDERA IDÓNEA PARA CONTENER ELEVADOS PESOS DE VIDRIO EN 1,2 Y 3 CARRILES

Carpintería corredera con rotura de puente térmico que permite elegir el tipo de accionamiento de la hoja; corredera en línea ó elevable.

Marco y hoja son perimetrales teniendo una profundidad de 135 mm y 53 mm respectivamente. Dicho sistema cuenta con marcos de uno (monocarril con fijo lateral), dos y tres carriles.

El sistema de corredera en línea realiza el cierre de la hoja con el cerco mediante un cierre multipunto accionado con maneta. El peso máximo garantizado para las hojas será de hasta 200 Kgr. con ruedas tándem regulables.

El sistema elevable permite una elevación de la hoja para abrir el cerramiento, bajando después para que el cierre sea perimetral y hermético, todo ello accionado mediante maneta. Con carro adicional el peso máximo por hoja hasta 400 Kg. Posibilidad de incorporar maneta interior y exterior con bombillo de seguridad.

La hoja permite la colocación de junquillos rectos o curvos siendo el galce máximo de acristalamiento de 44 mm.

Amplia gama de perfiles, que facilitan la composición de diferentes diseños así como múltiples posibilidades en su puesta en obra.

ESPECIFICACIONES TÉCNICAS

Permeabilidad al aire CLASE 3 *
UNE EN 1026 – EN 12207
Estanqueidad al agua CLASE 9A º
UNE EN 1027 – EN 12208
Resistencia al viento CLASE C5 *
UNE EN 12211 – EN 12210
Transmitancia térmica 2.3 W/m2 K **
UNE EN ISO 10077-1
Aislamiento acústico 32 (-1;-4)dB ***
UNE EN 10140-2:2011

º Ventana de 2 hojas de 3000 x 2375 mm.

* Ventana de 2 hojas de 1230 x 1480 mm.

** Ventana de 2 hojas de 1480 x 2180 mm; vidrio Ug: 0.6 W/m2 K.

*** Ventana de 2 hojas de 1230 x 1480 mm.; vidrio Rw:40 (-2,-6)dB.

SERIE IBIZA

CORREDERA MINIMALISTA CREA PAREDES DE VIDRIO EN ARMONÍA CON EL ENTORNO

Carpintería corredera con rotura de puente térmico y un innato sistema de rodadura con múltiples rodamientos integrados en el cerco inferior, permite un peso máximo garantizado para las hojas de hasta 400 Kg.

Dicho sistema cuenta con marcos de uno(monocarril), dos y tres carriles permitiendo la realización de grandes aperturas como paso a terraza ó porche. Perfil de hoja central testa minimalista de 30 mm. frente visto, identidad que dota al sistema de espacios diáfanos con mayor campo visual.

El cierre de la hoja con el marco se realiza mediante un sistema de seguridad multipunto accionado mediante maneta.

Amplia gama de perfiles, que facilitan la composición de diferentes diseños así como múltiples posibilidades en su puesta en obra.

Galce máximo de acristalamiento de 39 mm.

Marca la línea de la excelencia en la gama de aperturas correderas de mínimo perfil de aluminio para grandes dimensiones de vidrio.

ESPECIFICACIONES TÉCNICAS

Permeabilidad al aire CLASE 3 *
UNE EN 1026 – EN 12207
Estanqueidad al agua CLASE 7A *
UNE EN 1027 – EN 12208
Resistencia al viento CLASE C2 *
UNE EN 12211 – EN 12210

* Ventana de 2 hojas de 2590 x 2520 mm.

SERIE S-300 EUR

CORREDERA DE LÍNEAS PURAS Y TRADICIONALES CON MÚLTIPLES SOLUCIONES

Carpintería corredera sin rotura de puente térmico que permite un desplazamiento de las hojas sobre el cerco de 2 y 3 carriles. Opción de perfil de hoja reforzada con mayor inercia, con efecto de tirador.

Marco con corte a 90º teniendo unas medidas de 70 mm de profundidad, y hojas de corte recto a 90º igualmente con varias medidas en altura y con 26 mm. de profundidad.

Posibilidad de elegir hojas para vidrios monolíticos, así como para doble vidrios con galce de 20 mm. de hueco.

Amplia gama de perfiles, que facilitan la composición de diferentes diseños así como múltiples posibilidades en su puesta en obra.

ESPECIFICACIONES TÉCNICAS

Permeabilidad al aire CLASE 3 *
UNE EN 1026 – EN 12207
Estanqueidad al agua CLASE 6A *
UNE EN 1027 – EN 12208
Resistencia al viento CLASE C2 *
UNE EN 12211 – EN 12210
Transmitancia térmica 4.1 W/m2 K **
UNE EN ISO 10077-1
Aislamiento acústico 29 (-0;-2)dB ***
UNE EN 10140-2:2011

* Ventana de 2 hojas de 2590 x 2520 mm.

** VVentana de 2 hojas de 1480 x 2180 mm. con cajón de persiana; vidrio 4/8/4

*** Ventana de 2 hojas de 1230 x 1480 mm.; vidrio 4/8/4

SERIE S-400 EUR

CORREDERA DE LÍNEAS PURAS Y TRADICIONALES CON MÚLTIPLES SOLUCIONES

Carpintería corredera sin rotura de puente térmico que permite un desplazamiento de las hojas sobre el cerco de 2 carriles. Opción de perfil de hoja reforzada con mayor inercia, con efecto de tirador.

Marco con corte a 90º teniendo unas medidas de 60 mm de profundidad, y hojas de corte recto a 90º igualmente con varias medidas en altura y con 24 mm. de profundidad.

Posibilidad de elegir hojas para vidrios monolíticos, así como para doble vidrios con galce de 18 mm. de hueco.

Amplia gama de perfiles, que facilitan la composición de diferentes diseños así como múltiples posibilidades en su puesta en obra.

ESPECIFICACIONES TÉCNICAS

Permeabilidad al aire CLASE 3 *
UNE EN 1026 – EN 12207
Estanqueidad al agua CLASE 7A *
UNE EN 1027 – EN 12208
Resistencia al viento CLASE C2 *
UNE EN 12211 – EN 12210
Transmitancia térmica 4.1 W/m2 K **
UNE EN ISO 10077-1
Aislamiento acústico 26 (-1;-2)dB ***
UNE EN 10140-2:2011

* Ventana de 2 hojas de 1450 x 1490 mm.

** Ventana de 2 hojas de 1480 x 2180 mm. con cajón de persiana; vidrio 4/6/4

*** Ventana de 2 hojas de 1230 x 1480 mm.; vidrio 4/6/4

SERIE S-800 EUR

CORREDERA DE LÍNEAS PURAS Y TRADICIONALES CON MÚLTIPLES SOLUCIONES

Carpintería corredera sin rotura de puente térmico que permite un desplazamiento de las hojas sobre el cerco de 2 y 3 carriles. Opción de perfil de hoja reforzada con mayor inercia, con efecto de tirador.

Marco con corte a 90º teniendo unas medidas de 60 mm de profundidad, y hojas de corte recto a 90º igualmente con varias medidas en altura y con 22 mm. de profundidad.

Posibilidad de elegir hojas para vidrios monolíticos, así como para doble vidrios con galce de 19.4 mm. de hueco.

Amplia gama de perfiles, que facilitan la composición de diferentes diseños así como múltiples posibilidades en su puesta en obra.

ESPECIFICACIONES TÉCNICAS

Permeabilidad al aire CLASE 2 *
UNE EN 1026 – EN 12207
Estanqueidad al agua CLASE 3A *
UNE EN 1027 – EN 12208
Resistencia al viento CLASE C2 *
UNE EN 12211 – EN 12210
Transmitancia térmica 3.5 W/m2 K **
UNE EN ISO 10077-1
Aislamiento acústico 29 (-1;-3)dB ***
UNE EN 10140-2:2011

* Ventana de 2 hojas de 1230 x 1480 mm.

** Ventana de 2 hojas de 1480 x 2180 mm. con cajón de persiana; vidrio 4/10/4

*** Ventana de 2 hojas de 1230 x 1480 mm.; vidrio 4/8/4

SERIE SILVER 60

CORREDERA DE LÍNEAS SOBRIAS INCORPORA LA ELECCIÓN DE CIERRE MULTIPUNTO

Carpintería corredera sin rotura de puente térmico que permite un desplazamiento de las hojas sobre el cerco de 60 mm. Opción de perfil de hoja reforzada con mayor inercia, con efecto de tirador.

Marco y hoja perimetrales con una profundidad de 60 y 24 mm respectivamente. Posibilidad de marco de dos y tres carriles. El peso máximo garantizado para las hojas será de hasta 50 Kg.

Posee varias opciones de cierre, permitiendo incorporar un cierre multipunto accionado mediante maneta.

Posibilidad de elegir hojas para vidrios monolíticos, así como para doble vidrio con galce de 15 mm. de espesor (18 mm. de hueco).

ESPECIFICACIONES TÉCNICAS

Permeabilidad al aire CLASE 3 *
UNE EN 1026 – EN 12207
Estanqueidad al agua CLASE 6A *
UNE EN 1027 – EN 12208
Resistencia al viento CLASE C1 *
UNE EN 12211 – EN 12210
Transmitancia térmica 3.8 W/m2 K **
UNE EN ISO 10077-1
Aislamiento acústico 29 (-1;-2)dB ***
UNE EN 10140-2:2011

* Ventana de 2 hojas de 1230 x 1480 mm.

** Ventana de 2 hojas de 1480 x 2180 mm. con cajón de persiana; vidrio 4/10/4

*** Ventana de 2 hojas de 1230 x 1480 mm.; vidrio 4/6/4

SERIE SILVER 70

CORREDERA DE LÍNEAS SOBRIAS INCORPORA LA ELECCIÓN DE CIERRE MULTIPUNTO

Carpintería corredera sin rotura de puente térmico que permite un desplazamiento de las hojas sobre el cerco de 70 mm. Opción de perfil de hoja reforzada con mayor inercia, con efecto de tirador. Suma la elección del cruce de hojas con acople recto ó curvo.

Marco y hoja perimetrales con una profundidad de 70 y 26 mm respectivamente. Posibilidad de marco de dos y tres carriles. El peso máximo garantizado para las hojas será de hasta 90 Kg.

Posee varias opciones de cierre, permitiendo incorporar un cierre multipunto accionado mediante maneta.

Posibilidad de elegir hojas para vidrios monolíticos, así como para doble vidrio con galce de 17 mm. de espesor (20 mm. de hueco).

ESPECIFICACIONES TÉCNICAS

Permeabilidad al aire CLASE 3 *
UNE EN 1026 – EN 12207
Estanqueidad al agua CLASE 6A *
UNE EN 1027 – EN 12208
Resistencia al viento CLASE C1 *
UNE EN 12211 – EN 12210
Transmitancia térmica 3.9 W/m2 K **
UNE EN ISO 10077-1
Aislamiento acústico 29 (-1;-2)dB ***
UNE EN 10140-2:2011

* Ventana de 2 hojas de 1230 x 1480 mm.

** Ventana de 2 hojas de 1480 x 2180 mm. con cajón de persiana; vidrio 4/10/4

*** Ventana de 2 hojas de 1230 x 1480 mm.; vidrio 4/6/4

SERIE MATRA 110

CORREDERA DINÁMICA GENERA POLIVALENCIA ENTRE SUS PRESTACIONES

Carpintería corredera sin rotura de puente térmico que permite un desplazamiento de las hojas sobre el cerco de 110 mm. Opción de elegir el tipo de accionamiento de la hoja; corredera en línea ó elevable.

Marco y hoja perimetrales con una profundidad de 110 y 43 mm respectivamente. El peso máximo garantizado para las hojas será de hasta 200 Kg, con ruedas tándem regulables.

El sistema de corredera en línea realiza el cierre de la hoja con el cerco mediante un cierre multipunto accionado con maneta.

El sistema elevable permite una elevación de la hoja para abrir el cerramiento, bajando después para que el cierre sea perimetral y hermético, todo ello accionado mediante maneta.

La hoja permite la colocación de junquillos rectos o curvos siendo el galce máximo de acristalamiento de 34 mm.

Amplia gama de perfiles, que facilitan la composición de diferentes diseños así como múltiples posibilidades en su puesta en obra.

ESPECIFICACIONES TÉCNICAS

Permeabilidad al aire CLASE 3 *
UNE EN 1026 – EN 12207
Estanqueidad al agua CLASE 7A *
UNE EN 1027 – EN 12208
Resistencia al viento CLASE C5 *
UNE EN 12211 – EN 12210
Transmitancia térmica 4.0 W/m2 K **
UNE EN ISO 10077-1
Aislamiento acústico 31 (-1;-2)dB ***
UNE EN 10140-2:2011

* Ventana de 2 hojas de 1230 x 1480 mm.

** Ventana de 2 hojas de 1480 x 2180 mm. con cajón de persiana; vidrio 4/12/4

*** Ventana de 2 hojas de 1230 x 1480 mm.; vidrio 4/12/4

SERIE STILO PUERTA

PUERTA TIPO DE APERTURA EXTERIOR E INTERIOR INCLUSO DE VAIVÉN

Carpintería practicable sin rotura de puente térmico, los perfiles de cerco y hoja tienen una profundidad de 53 mm. Dicho sistema posibilita aperturas practicables de una y dos hojas, tanto al interior como al exterior, pudiéndose realizar múltiples composiciones de puertas y fijos.

El peso máximo garantizado para las hojas será de 180 Kg. por hoja. Juntas de cerco, hoja y acristalamiento en EPDM, material que garantiza su no deformación por el efecto de los rayos ultravioletas. Con un galce total máximo de acristalamiento de 38 mm. sin contar con las juntas de acristalar.

Permite incorporar bisagras regulables en sus tres ejes, guiadas por el canal de cerco y hoja, o bisagras de plastón. El sistema cuenta con diferentes tipos de cerradura con entrada de 30 mm. y diferentes posibilidades en cierrapuertas empotrados al suelo para aperturas tipo «vaivén».

Amplia gama de perfiles, que facilitan la composición de diferentes diseños así como múltiples posibilidades en su puesta en obra.

ESPECIFICACIONES TÉCNICAS

Resistencia al impacto de cuerpo blando CLASE 5 *
UNE EN 14019:2004 y UNE EN 13049:2003

* Puerta exterior peatonal de 2 hojas de 1600 x 2200 mm. y vidrio 3+3 mm.

SERIE ALG PUERTA

PUERTA MAGNA CON BISAGRA OCULTA ACOTA EL PESO POR HOJA HASTA 220 KG

Carpintería practicable con rotura de puente térmico, los perfiles de cerco y hoja tienen una profundidad de 65 mm. Dicho sistema posibilita aperturas practicables de una y dos hojas, tanto al interior como al exterior, pudiéndose realizar múltiples composiciones de puertas y fijos.

Alg Puerta-GLASS es la versión de apertura exterior con vista total de vidrio con decalaje.

El peso máximo garantizado para las hojas será de 220 Kg. por hoja. Juntas de cerco, hoja y acristalamiento en EPDM, material que garantiza su no deformación por el efecto de los rayos ultravioletas. Con un galce máximo de acristalamiento de 50 mm. sin contar con las juntas de acristalar.

Permite incorporar bisagras regulables en sus tres ejes, guiadas por el canal de cerco y hoja, o bisagras ocultas con capacidad de apertura 180º. El sistema cuenta con diferentes tipos de cerradura con entrada de 30 mm.

Amplia gama de perfiles, que facilitan la composición de diferentes diseños así como múltiples posibilidades en su puesta en obra.

ESPECIFICACIONES TÉCNICAS

Transmitancia térmica 2.9 W/m2 K
UNE EN ISO 10077-1